Hawaiian Retreat
This client had a request for a new swimming pool, spa, fire pit, as well as raised Lanai which contained a complete outdoor kitchen and dining area. The Pool and Spa are heated via new Solar Panels on the south side of the residence. Some of the detailed drawings as well as finished product are shown below.

Hawaiian Residence - Landscape Concept Plan

Hawaiian Residence - Pool / Spa / Patio Layout

Hawaiian Residence - Planting Plan

Hawaiian Residence - Pool / Spa Cross Sections

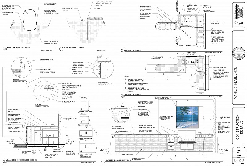
Hawaiian Residence - Outdoor Kitchen Details

Hawaiian Residence - Pool Tile / Coping

Hawaiian Residence - Spa / Waterfall

Hawaiian Residence - Pool Decking / Furniture

Hawaiian Residence - Fire Elements

Hawaiian Residence - Pool View