Drawing Samples

The following are samples of some of our drawings prepared for both residential and commercial projects in AutoCad format. Some of these projects are built, and some are currently under construction.

Santa Fe Station - Landscape Concept Plan
Santa Fe Station - Landscape Concept Plan
Santa Fe Station - Courtyard Enlargement
Santa Fe Station - Courtyard Enlargement
Arbor Terrace - Concept Plan
Arbor Terrace - Concept Plan
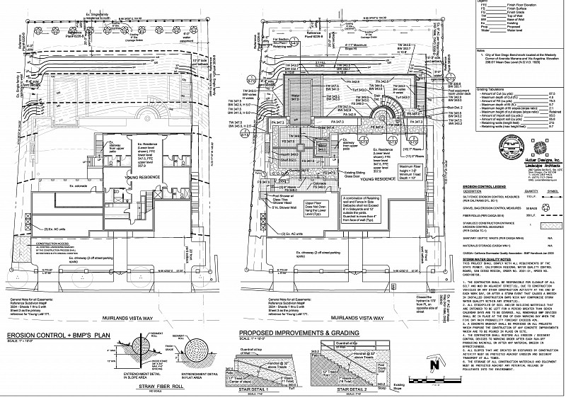
Young Residence - Grading Plan
Young Residence - Grading Plan
Sanz Residence - Planting Plan
Sanz Residence - Planting Plan
Sanz Residence - Pool Sections
Sanz Residence - Pool Sections
Imperial Ave -  Landscape Development Plan
Imperial Ave - Landscape Development Plan
Sherman Garden Plaza
Sherman Garden Plaza